Серия

СТАНДАРТ

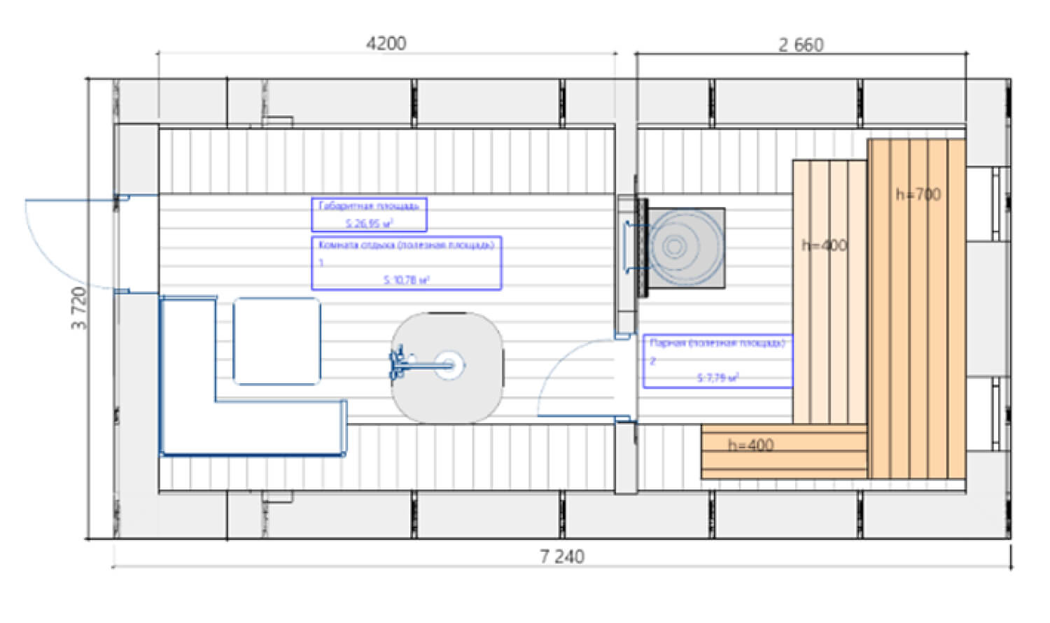
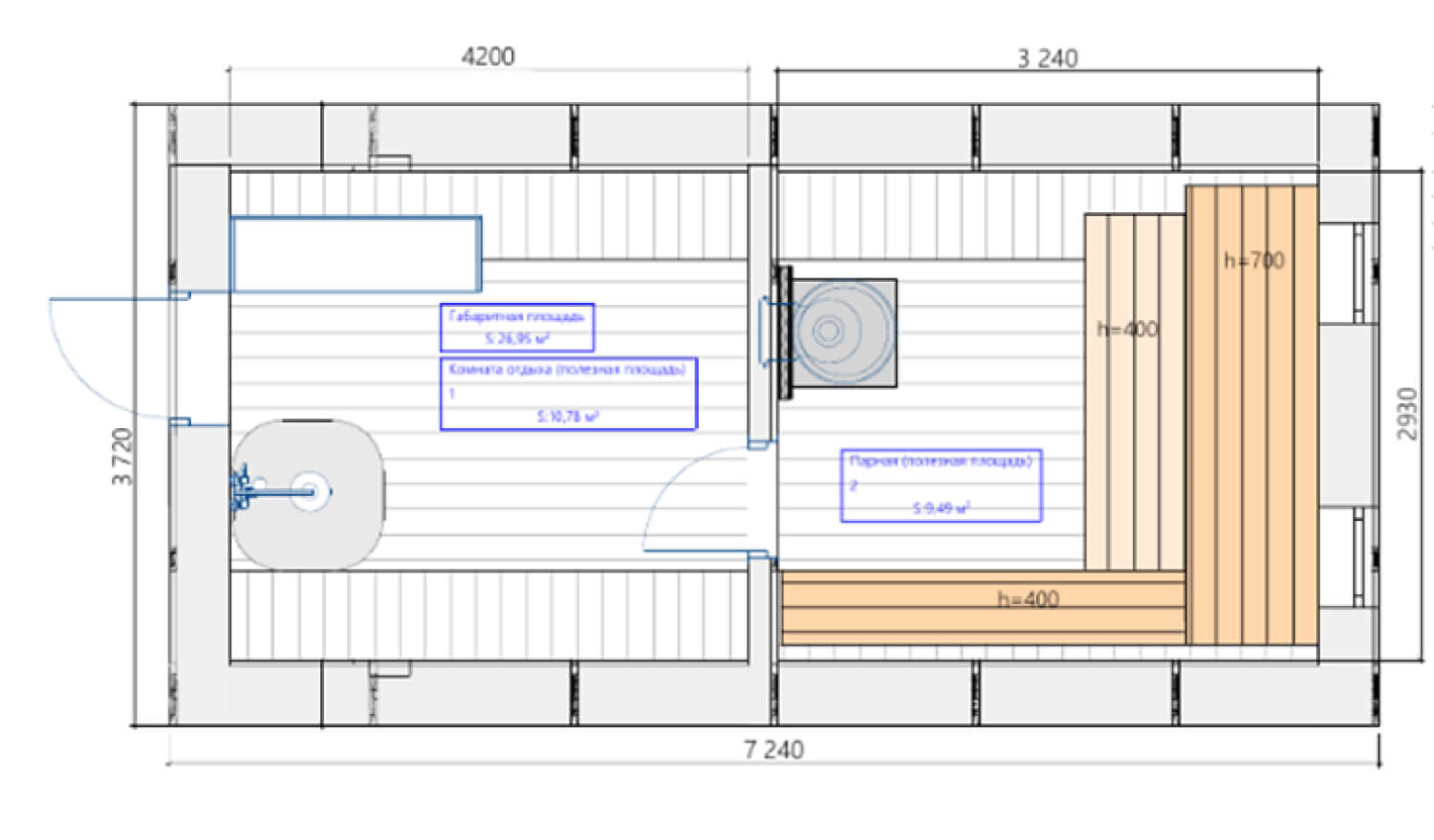
Планировки

БАНЯ-СОТА
«Серия СТАНДАРТ» с Плоской Крышей
Толщина стен каркаса ~ 240 мм
Снаружи - фасад любого типа,
ветрозащитная пленка,
Вариант 1 - без утеплителя 100-150 мм,
Вариант 2 - под утеплитель 100-150 мм,
гидроизоляционная пленка,
вент зазор снаружи и внутри.
Отделка внутреннего интерьера по вашему желанию.

Дополнительное оборудование:

«Печь»
В данной комплектации рекомендуется использовать
печь для Сауны / "Русской Бани"

«Сливные полы»
В данной комплектации сливные полу не предусмотрены.
Сливные полы возможны как доп. опция при монтаже печи для
Русской Бани

Вентиляция «Басту»
Позволяет долгое время находится в парном помещении без ущерба для здоровья. Данный тип вентиляции равномерно прогревает пол, стену, потолки. Обеспечивает отвод отработанного воздуха из парного помещения и приток свежего воздуха, что позволяет выполнять правильную циркуляцию воздуха в парной.

3D Визуализатор
ТАРАСОВ СЕМЁН СЕРГЕЕВИЧ

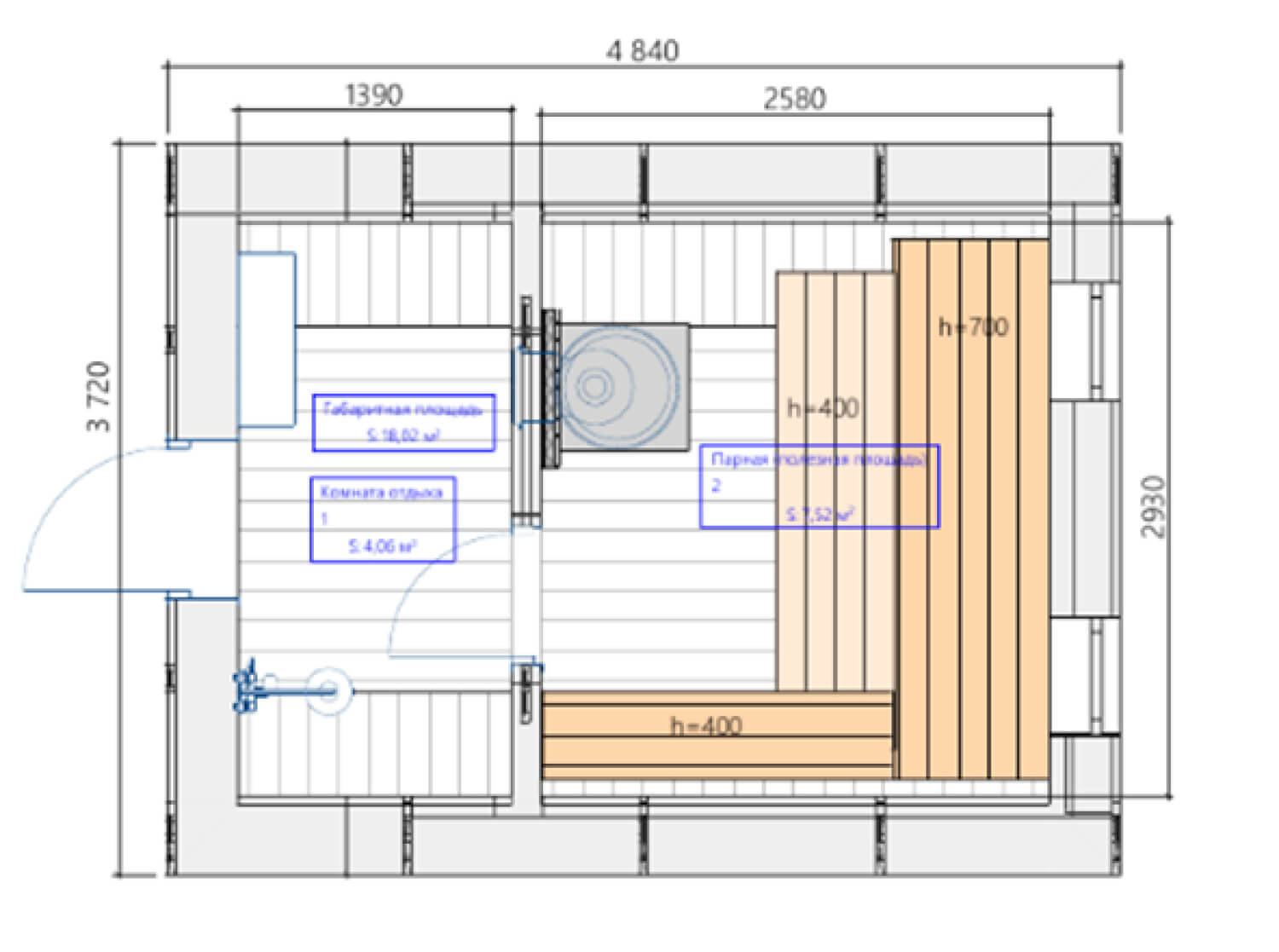
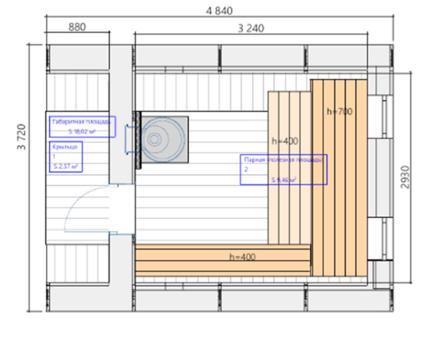
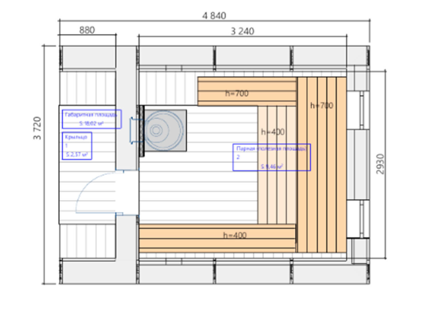
Планировки

БАНЯ-СОТА
«Серия СТАНДАРТ» с Плоской Крышей
Толщина стен каркаса ~ 240 мм
Снаружи - фасад любого типа,
ветрозащитная пленка,
Вариант 1 - без утеплителя 100-150 мм,
Вариант 2 - под утеплитель 100-150 мм,
гидроизоляционная пленка,
вент зазор снаружи и внутри.
Отделка внутреннего интерьера по вашему желанию.

Дополнительное оборудование:

«Печь»
В данной комплектации рекомендуется использовать
печь для Сауны / "Русской Бани"

«Сливные полы»
В данной комплектации сливные полу не предусмотрены.
Сливные полы возможны как доп. опция при монтаже печи для
Русской Бани

Вентиляция «Басту»
Позволяет долгое время находится в парном помещении без ущерба для здоровья. Данный тип вентиляции равномерно прогревает пол, стену, потолки. Обеспечивает отвод отработанного воздуха из парного помещения и приток свежего воздуха, что позволяет выполнять правильную циркуляцию воздуха в парной.

3D Визуализатор
ТАРАСОВ СЕМЁН СЕРГЕЕВИЧ

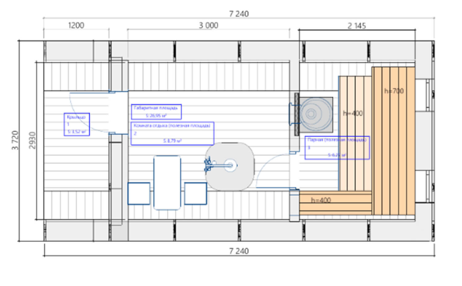
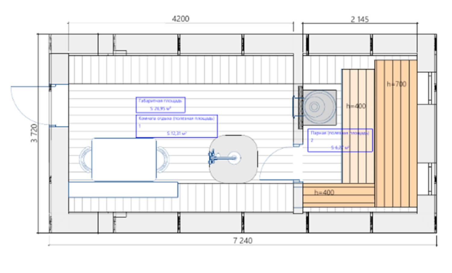
Планировки

БАНЯ-СОТА
«Серия СТАНДАРТ» с Плоской Крышей
Толщина стен каркаса ~ 240 мм
Снаружи - фасад любого типа,
ветрозащитная пленка,
Вариант 1 - без утеплителя 100-150 мм,
Вариант 2 - под утеплитель 100-150 мм,
гидроизоляционная пленка,
вент зазор снаружи и внутри.
Отделка внутреннего интерьера по вашему желанию.

Дополнительное оборудование:

«Печь»
В данной комплектации рекомендуется использовать
печь для Сауны / "Русской Бани"

«Сливные полы»
В данной комплектации сливные полу не предусмотрены.
Сливные полы возможны как доп. опция при монтаже печи для
Русской Бани

Вентиляция «Басту»
Позволяет долгое время находится в парном помещении без ущерба для здоровья. Данный тип вентиляции равномерно прогревает пол, стену, потолки. Обеспечивает отвод отработанного воздуха из парного помещения и приток свежего воздуха, что позволяет выполнять правильную циркуляцию воздуха в парной.

3D Визуализатор
ТАРАСОВ СЕМЁН СЕРГЕЕВИЧ
Made on
Tilda